As we move ahead in the post-pandemic years, we’re starting to see how design thinking and client programs shifted as a result of new priorities. It was an awakening of sorts that drove even owners of primary residences—not just vacation homes in scenic locales—to give greater consideration to the areas outside their houses. That’s what happened on Mode4 Architecture’s citation winner—a remodel of an original house by architect Robert M. Gurney, FAIA—and it actually happened mid-design.
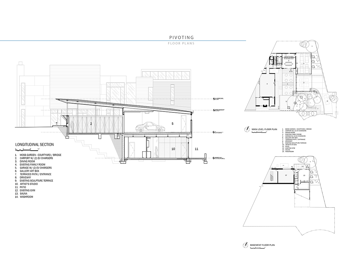
“Pivoting refers to the doors on this addition and remodel, but it was also a response to the pandemic and how we use outdoor spaces,” explains architect Christopher Tucker, AIA. “We had to stop and pivot in a different direction on this project. At first, we had designed a more interior space.”
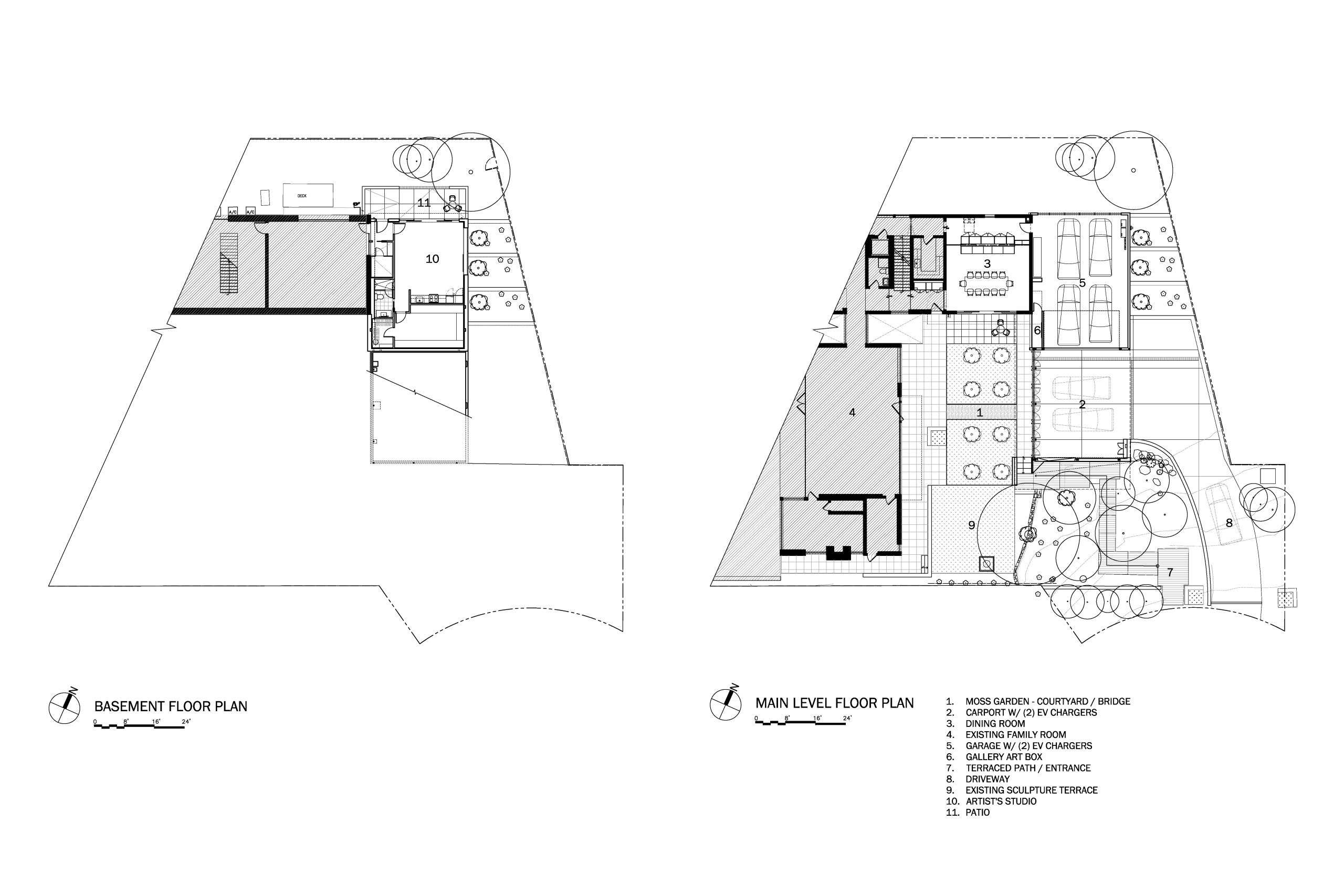
Ultimately, the scope was expanded into a retrofit of an attached garage and its adjacent gravel parking pad into a dining room that opens onto a courtyard garden and entertaining space. A new garage, studio space, and carport were also added, with the carport flexing as an event pavilion. Those pivot doors open the carport to the courtyard or stay closed to conceal the cars within.
Said our judges, “It creates this wonderful courtyard out of this liminal space and pulls all of these other spaces into it with a level of porosity that’s very well done. It’s all about the leftover space and how they captured that.”





















Citation
Custom Outdoor Living Design
Mode4 Architecture
Pivoting
Bethesda, Maryland
Project Credits
Architect: Christopher Tucker, AIA, Mode4 Architecture, Alexandria, Virginia
Builder: Steve Howard, Square One Development, Hagerstown, Maryland
Landscape Architect: SPD Landscape Studio, Silver Spring, Maryland
Project Size: 5,000 square feet
Site Size: 0.66 acre
Construction Cost: $600 per square foot
Photography: Anice Hoachlander
Key Products
Garage Doors: Clopay
Pivot Doors: Mahogany and steel, custom design by Christopher Tucker and Kenneth Lopez, Mode4
Pivot Door Hinges: FritsJurgens
Window/Window Wall Systems: Western Window Systems

















